Attention aux piratages ! Gardez à l’esprit qu’aucune de nos agences ne vous demandera de payer pour vous faire visiter un bien. En cas de doutes, contacter directement nos agences par téléphone.

3
Accueil > Location logement étudiant >

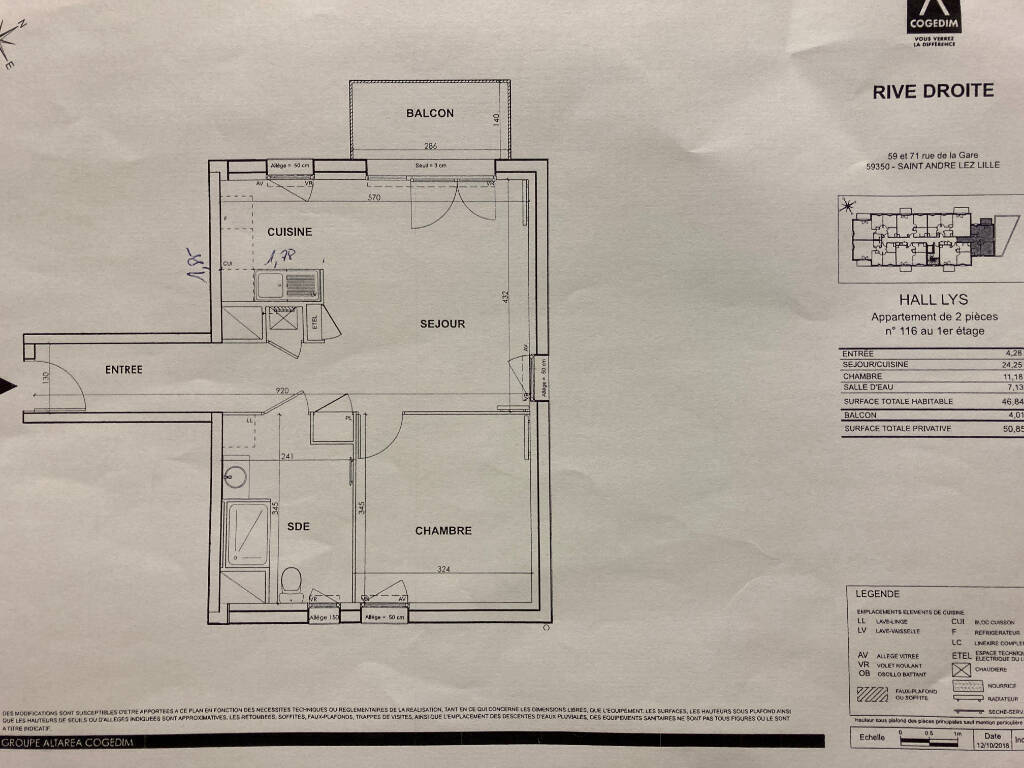
Location logement étudiant appartement 2 pièces 46.84 m² à Saint-André-lez-Lille (59350) 713,16 € / mois CC

< Revenir à la page précédente
< Précédente Annonce Suivante >

Appartement 2 pièces à louer

Saint-André-lez-Lille (59350) | Réf. : 1309

Loyer : 713,16 € / mois CC

Loyer Hors Charges : €

Charges : 60 €

Honoraires à charge locataire TTC : 608,92 €

dont état des lieux : 140,52 €

Dépôt de garantie : 653,16 €

S
1 chambre
£
1 salle d'eau
7
46.84 m²
1
1 parking

(CC) : Charges Comprises

Annonce 1309 - Contacter Marie PLATTEEURO au O6.73.74.42.57.
Très bel appartement de type 2 de 46.84m² idéalement situé rue de la Gare à Saint André Lez Lille, dans une résidence neuve
Il vous offre: un hall d'entrée, un séjour donnant sur un balcon, une cuisine ouverte équipée (Éléments de rangement, plaques à induction, hotte), une chambre, une salle d'eau (douche, WC). Une place de stationnement - Disponible de suite
**** Dispositif PINEL ****
Surface habitable : 46.84 m²
Étage : 1
Salle d'eau : 1
Nbre de parking : 1
Type chauffage : Individuel

Diagnostic de performance énergétique

C
v Date de réalisation : 23/11/2021
Classe énergie
C
74 kWh/m².an
Classe climat
C
14 kg CO2/m².an

Estimation des coûts annuels d’énergie du logement
Entre 336 € et 454 € par an
Prix moyens des énergies indexés sur l'année 2021 (abonnements compris)

Loyer : 713,16 € / mois CC

Loyer Hors Charges : €

Charges : 60 €

Honoraires à charge locataire TTC : 608,92 €

dont état des lieux : 140,52 €

Dépôt de garantie : 653,16 €

S
1 chambre
£
1 salle d'eau
7
46.84 m²
1
1 parking

(CC) : Charges Comprises

Nous appeler
Abonnez-vous à nos offres spéciales investisseurs

Localisation & services de proximité

Biens similaires


Nous contacter pour ce bien
Laissez-nous vos coordonnées

J'envisage aussi de mettre un bien à la vente

Obtenir une estimation
J’accepte de recevoir des informations sur l’immobilier, les nouvelles réglementations et les nouvelles offres et produits personnalisés de Habitez Etudiez**.

Si vous cochez non, vous indiquez que vous ne souhaitez pas recevoir de lettre d’information sur l'actualité de l’immobilier, les offres et produits du réseau IMMO de France

En cliquant sur Envoyer vous acceptez de recevoir des informations concernant le bien présenté ci-dessus et des offres similaires susceptibles de vous intéresser.

*Champs obligatoires
**Recueil de vos informations personnelles afin de pouvoir gérer la relation client et apporter conseils et informations complémentaires au niveau de la marque IMMO de France et le cas échéant au niveau des partenaires et prestataires. Les données transmises via ce formulaire sont destinées uniquement au personnel de IMMO de France et sont conservées pour une durée n’excédant pas celle nécessaire à la réalisation des finalités précitées.
Conformément au Règlement européen n°2016/679/UE du 27 avril 2016 sur la protection des données personnelles et à la loi « informatique et libertés » du 6 janvier 1978 modifiée, vous disposez d'un droit d'interrogation d'accès, de rectification, d’effacement, de portabilité et de limitation du traitement des données vous concernant ainsi que du droit de communiquer des directives sur le sort de vos données après votre mort. Vous avez également la possibilité de vous opposer au traitement des données vous concernant pour motifs légitimes. Vous pouvez exercer ce droit par courrier électronique adressé à: service.communication@immodefrance.com ou par courrier PROCIVIS Immobilier 87 Quai Panhard et Levassor 75013 PARIS, accompagné d'une copie d'un titre d'identité. Par ailleurs, si vos coordonnées téléphoniques ont été recueillies, vous pouvez vous inscrire sur la liste d’opposition au démarchage téléphonique prévue en faveur des consommateurs par l’article L223-1 du code de la consommation. Pour plus d'informations consulter nos Mentions légales

Nous vous accompagnons pour réaliser
au mieux votre projet immobilier

IMMO de France Nord-pas-de-Calais Lille

28 rue des arts

59000 - Lille

Horaires, équipes Nous appeler Nous contacter Localiser l'agence
t Alerte mail 4 Ma sélection n Espace client 6 Newsletter x Facebook
cookie