Attention aux piratages ! Gardez à l’esprit qu’aucune de nos agences ne vous demandera de payer pour vous faire visiter un bien. En cas de doutes, contacter directement nos agences par téléphone.

3
Accueil > Location logement étudiant >

Location logement étudiant appartement 2 pièces 46.1 m² à Roubaix (59100) 661,56 € / mois CC

< Revenir à la page précédente
< Précédente Annonce Suivante >

Appartement 2 pièces à louer

Roubaix (59100) | Réf. : 2752

Loyer : 661,56 € / mois CC

Loyer Hors Charges : €

Charges : 50 €

Honoraires à charge locataire TTC : 599,30 €

dont état des lieux : 138,30 €

Dépôt de garantie : 611,56 €

S
1 chambre
£
1 salle d'eau
7
46.1 m²
1
1 parking

(CC) : Charges Comprises

Annonce 2752 - Contacter IMMO DE FRANCE Jade GERNEZ au O6.16.46.55.67
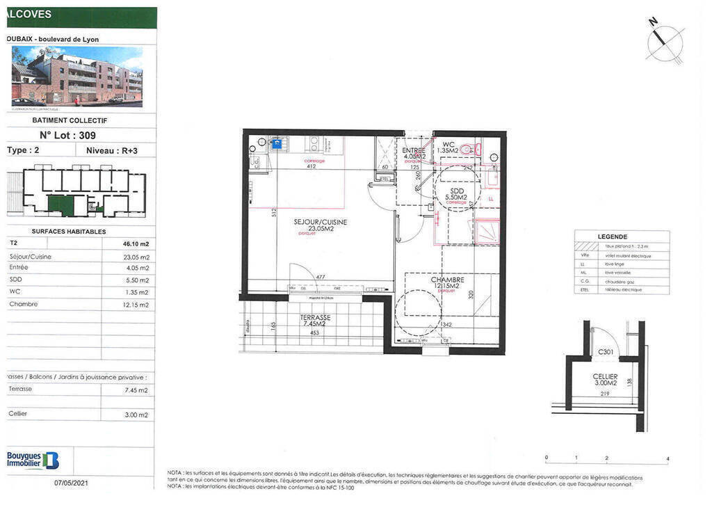
Roubaix, rue Ingres, Appartement type 2 A louer dans une résidence neuve, offrant un hall d'entrée avec placard, un séjour avec cuisine ouverte équipée donnant accès a une terrasse expose Sud, une chambre de 12m², une salle de douche avec WC- Loué avec place de parking + cellier- Disponible de suite -**LOI PINEL**
Surface habitable : 46.1 m²
Étage : 3
Salle d'eau : 1
Nbre de parking : 1
Terrasse : 1
Type chauffage : Individuel

Diagnostic de performance énergétique

C
v Date de réalisation : 21/06/2023
Classe énergie
C
66 kWh/m².an
Classe climat
C
13 kg CO2/m².an

Loyer : 661,56 € / mois CC

Loyer Hors Charges : €

Charges : 50 €

Honoraires à charge locataire TTC : 599,30 €

dont état des lieux : 138,30 €

Dépôt de garantie : 611,56 €

S
1 chambre
£
1 salle d'eau
7
46.1 m²
1
1 parking

(CC) : Charges Comprises

Nous appeler
Abonnez-vous à nos offres spéciales investisseurs

Localisation & services de proximité

Biens similaires

Location logement étudiant parking / box à Roubaix (59100)

60 € / mois CC - Roubaix

Parking
Roubaix

60 € / mois CC
Ajouter à ma selection

Biens visités


Nous contacter pour ce bien
Laissez-nous vos coordonnées

J'envisage aussi de mettre un bien à la vente

Obtenir une estimation
J’accepte de recevoir des informations sur l’immobilier, les nouvelles réglementations et les nouvelles offres et produits personnalisés de Habitez Etudiez**.

Si vous cochez non, vous indiquez que vous ne souhaitez pas recevoir de lettre d’information sur l'actualité de l’immobilier, les offres et produits du réseau IMMO de France

En cliquant sur Envoyer vous acceptez de recevoir des informations concernant le bien présenté ci-dessus et des offres similaires susceptibles de vous intéresser.

*Champs obligatoires
**Recueil de vos informations personnelles afin de pouvoir gérer la relation client et apporter conseils et informations complémentaires au niveau de la marque IMMO de France et le cas échéant au niveau des partenaires et prestataires. Les données transmises via ce formulaire sont destinées uniquement au personnel de IMMO de France et sont conservées pour une durée n’excédant pas celle nécessaire à la réalisation des finalités précitées.
Conformément au Règlement européen n°2016/679/UE du 27 avril 2016 sur la protection des données personnelles et à la loi « informatique et libertés » du 6 janvier 1978 modifiée, vous disposez d'un droit d'interrogation d'accès, de rectification, d’effacement, de portabilité et de limitation du traitement des données vous concernant ainsi que du droit de communiquer des directives sur le sort de vos données après votre mort. Vous avez également la possibilité de vous opposer au traitement des données vous concernant pour motifs légitimes. Vous pouvez exercer ce droit par courrier électronique adressé à: service.communication@immodefrance.com ou par courrier PROCIVIS Immobilier 87 Quai Panhard et Levassor 75013 PARIS, accompagné d'une copie d'un titre d'identité. Par ailleurs, si vos coordonnées téléphoniques ont été recueillies, vous pouvez vous inscrire sur la liste d’opposition au démarchage téléphonique prévue en faveur des consommateurs par l’article L223-1 du code de la consommation. Pour plus d'informations consulter nos Mentions légales

Nous vous accompagnons pour réaliser
au mieux votre projet immobilier

IMMO de France Nord-pas-de-Calais Lille

28 rue des arts

59000 - Lille

Horaires, équipes Nous appeler Nous contacter Localiser l'agence
t Alerte mail 4 Ma sélection n Espace client 6 Newsletter x Facebook
cookie